
AVAILABLE TO TOUR SOON!
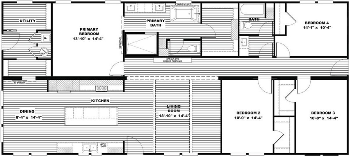
This new FINISHED DRYWALL model offers you and your family the largest living room space in the Boujee collection. This beautiful home features a new 60" electric fireplace with a beautiful mantel in the spacious living room. The Boujee Premier is our most unique floor plan layout to date in this series.
HUGE front kitchen design with an abundance of natural light and an island built for the largest of dinner gatherings. There is an option to add sliding patio doors off the end of the dining room for outdoor entertaining.
The Boujee Premier also provides a more private primary suite - featuring a spacious bathroom with a 72 inch ceramic and glass walk-in shower and a free standing tub you have to see! A private toilet area, a large vanity with 2 sinks, storage for towels and a huge walk-in closet!




















